

| 所在地 | 横浜市港北区新吉田東 |
|---|---|
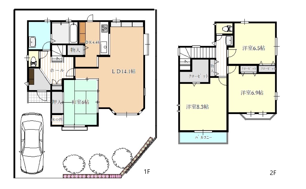
| 間取り | 4LDK |
| 土地 | 144.07u |
| 私道持ち分 | 239u |
| 建物 | 114.89u(1階65.62u 2階49.27u) |
| 築年月 | 平成13年7月 |
| 用途地域 | 第一種低層住居専用地域 建蔽率 50% 容積率 80% |
| 接道状況 | 東側幅員約5.8m公道・南側幅員5m私道 |
| リフォーム 箇所 |
キッチン ユニットバス 洗面化粧台(2箇所) トイレ(2箇所) クロス張替え(全室) 外壁塗装 畳表替え |
| 設備 | 公営水道・都市ガス 【システムキッチン】 タカラスタンダード オフェリア 食器洗い乾燥機・浄水器内臓ハンドシャワー水栓 ガラスコンロ・水切りプレート付 レンジフードホーロー整流板 【システムバス】 TOTOサザナ ほっカラリ床・エアーインシャワー・魔法びん浴槽 換気暖房乾燥機2枚割りふた断熱仕様 【トイレ】 TOTOZJ(4.8L仕様) ウォシュレット一体型便器 【洗面化粧台】 TOTO STシリーズ すべり台ボウル・たっぷり収納 |